
KLASSISCHE ARCHITEKTUR
MODERNE INNENARCHITEKTUR
Wir sind ein kreatives Architekturbüro, das Ihre Wünsche erfüllt. Wir verfügen über viel Erfahrung und Fachkompetenz, setzen aber vor allem die individuelle Betreuung und Realisierung Ihrer Vorstellungen an die erste Stelle. Mit Liebe zum Detail, Transparenz in allen Schritten und Sinn für Ästhetik bekommen Sie mit uns ihr Vorhaben erfolgreich umgesetzt.
LEISTUNGEN
Wir sind ein Team aus Architekten und Innenarchitekten und greifen auf viele Jahre Berufserfahrung zurück. Durch unsere langjährige Erfahrung haben wir ein Gespür für unsere Bauherren und deren Wünsche. Zusammen mit unseren Nachunternehmern stehen wir fest in der Baubranche und können zeit- und kostenoptimiert arbeiten.
Von der ersten Idee über erste Skizzen bis hin zur fertigen Planung unterstützen wir Sie in allen Phasen Ihres Vorhabens. Dabei setzen wir nicht nur die Planung Ihrer Idee um, sondern begleiten Sie auch bei allen Prozessen des Baus.
Uns ist es wichtig, dass sich unsere Kunden bei uns gut aufgehoben fühlen und sich auf uns verlassen können.
Damit wir unseren Kunden die bestmögliche Beratung und Betreuung bieten können, arbeiten wir ganz eng mit unseren Fachplanern und ausführenden Gewerken zusammen.

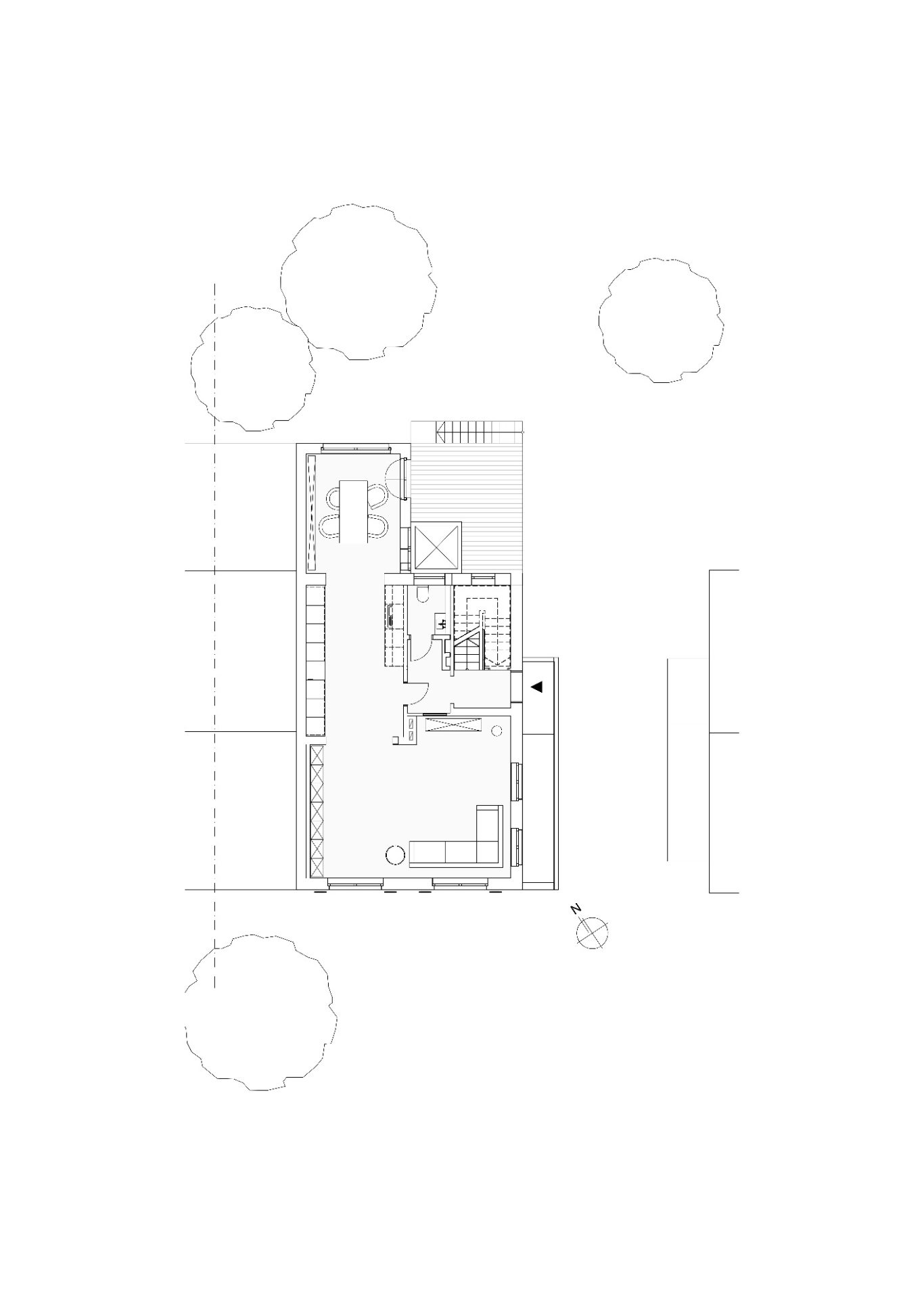
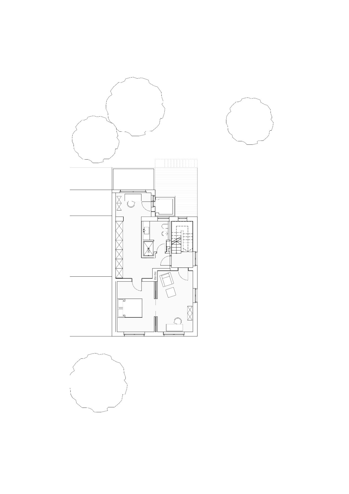
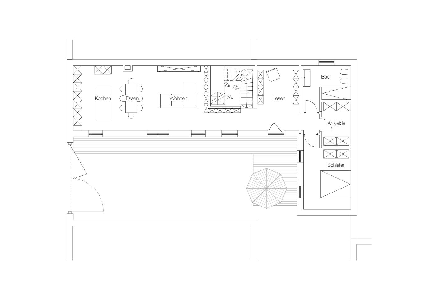
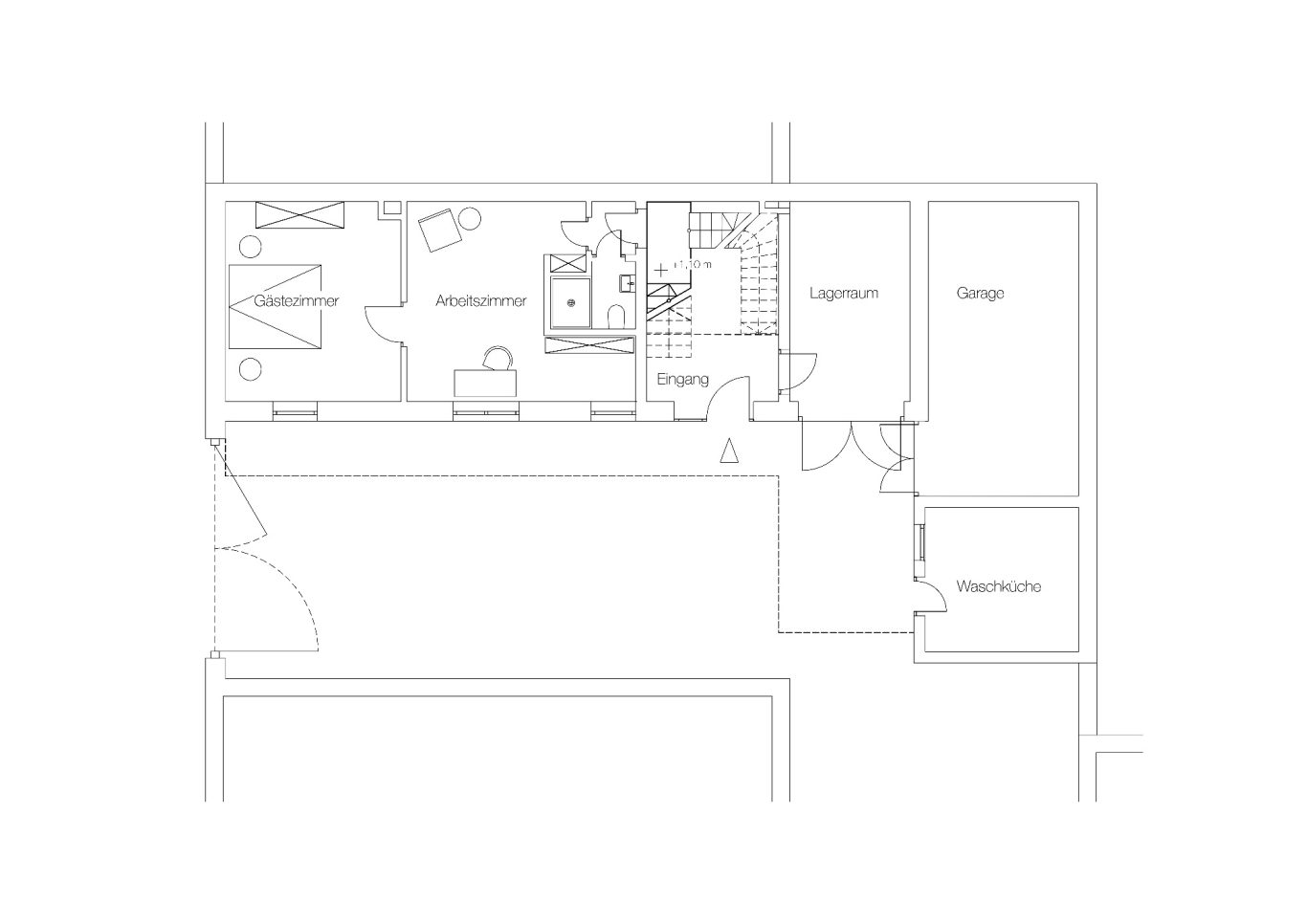
TAR15
Taubenacker - Meerbusch
Sanierung Einfamilienhaus
Leistungsphasen 1-8
Zeitraum 2024 - 2025

AMK18
Neubau Einfamilienhaus
Rohbau
Leistungsphasen 1-8
Zeitraum 2022 - 2025

KIM34
Kimplerstraße - Krefeld
Sanierung und Umbau Einfamilienhaus
Leistungsphasen 1-8
Zeitraum 2023 - 2025

WIT33
Wittelsbachstraße - Düsseldorf
Sanierung und Umbau Einfamilienhaus
Leistungsphasen 1-4
Zeitraum 2023 - 2024

OTT02
Ottostraße - Düsseldorf
Entwurf und Bauantrag
Hinterhofgebäude
Leistungsphasen 1-4
Zeitraum 2023 - 2024

ASC30
Auf dem Scheid - Meerbusch
Neubau Einfamilienhaus
in Holzbauweise
Leistungsphasen 1-8
Zeitraum 2024 - 2025
Projekte
2020 - 2021 | Weseler Straße Düsseldorf - Sanierung Wohnung | LPH 1-8
2020 - 2021 | Itterstraße Düsseldorf - Energetische Sanierung Fassade | LPH 8
2020 - 2021 | Birkenstraße Düsseldorf - Sanierung Wohnung | LPH 1-8
2022 - 2022 | Geibelstraße Düsseldorf - Ausbau Dachgeschoss | LPH 5-8
2022 - 2025 | Am Kämpchen Mettmann - Neubau Einfamilienhaus | LPH 1-8
2023 - 2023 | Sankt Swidbert Düsseldorf - Planung Anbau
2023 - 2024 | Wittelsbachstraße Düsseldorf - Sanierung Einfamilienhaus | LPH 1-4
2023 - 2024 | Kimplerstraße Krefeld - Sanierung Einfamilienhaus | LPH 1-8
2024 - 2024 | Gemarkenstraße Essen - Konzeptentwicklung, Entwurf | LPH 1-3
2024 - 2025 | Taubenacker Meerbusch - Sanierung Einfamilienhaus | LPH 1-8
2025 - 2025 | Gut Bruchhausen - Sanierung eines Denkmalgeschütztem Herrenhauses | LPH 8
2025 - 2025 | Schwalmtal - Sanierung eines Vierkanthofes | LPH 1-4
2025 - 2025 | Flachskamp Straße - Ausbau Dachgeschosswohnung | LPH 1-4
2024 - im Bau | Auf dem Scheid Meerbusch - Neubau Einfamilienhaus | LPH 1-8
2025 - im Bau | Stolberger Straße - Umbau und Sanierung von einem 3-Parteienhaus zum Einfamilienhaus | LPH 1-8
BERATUNG
IMMOBILIENBERATUNG
KONZEPTENTWICKLUNG
MACHBARKEITSSTUDIE
AUFMASS VOR ORT
AUFMASS ANHAND VON BESTANDSPLÄNEN
WOHNFLÄCHENBERECHNUNG
(WoFlV / DIN277)
ARCHITEKTUR
BAUEN IM BESTAND
WOHN- UND GESCHÄFTSHÄUSER
BÜRO UND VERWALTUNGSBAU
REVITALISIERUNG
HOLZ-HAUSBAU MIT BRETTSPERRHOLZ UND HOLZRAHMENBAU
LEISTUNGSPHASEN
GRUNDLAGENERMITTLUNG
VORPLANUNG
ENTWURFSPLANUNG
GENEHMIGUNGSPLANUNG
AUSFÜHRUNGSPLANUNG
VERGABE
OBJEKTÜBERWACHTUNG
Unser Team

Alexander Schmerler
M.A. Architekt
Ottostraße 2, Düsseldorf
info@architektur-schmerler.de
0211 90 98 98 90







































